Lublin, Szerokie

Działka na sprzedaż

Opis nieruchomości

Na sprzedaż działka o powierzchni 2662m2 z projektem pod budynek biurowo-usługowy - okolice ul. Nałęczowskiej.

Kształt działki - Trapez, wymiary około 54m X 76m (licząc po dłuższych krawędziach działki)

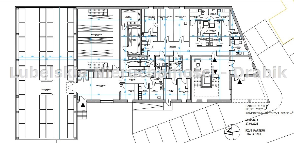
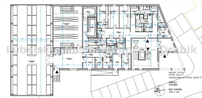
Koncepcja na budowę budynku biurowo-usługowego o pow. 969,38m2:
- hala 737,18m2 na paterze
- biura 232,2m2 z tarasem na piętrze

Działka oznaczona symbolem U- usługi ,


U - usługi  z podstawowym przeznaczeniem gruntów pod:
a) banki, instytucje ubezpieczeń, dyrekcje lub zarządy jednostek gospodarczych, obiekty jednostek
projektowych, obiekty handlu detalicznego i hurtowego, obiekty gastronomii, nieuciążliwych zakładów
produkcyjnych oraz rzemiosła, obiekty turystyki, tereny koncentracji usług,usługi łączności.


Dopuszcza się budynki o wysokości do 2 kondygnacji w tym druga może stanowić użytkowe
poddasze,

Zabudowa działki : 20 %.


Media:
- prąd na działce  
- woda na działce
- gaz w odległości około 17m od granicy działki
- telekomunikacja w granicy działki

Działka częściowo utwardzona kostką oraz płytami betonowymi, (budowlą - można amortyzować na firmę).

Działka ogrodzona z 3 stron,

Podana cena  netto ( + VAT 23%) - podlega negocjacji!

Polecamy i zapraszamy na naszą stronę internetową - Lubelskie Nieruchomości Drabik !

Nota prawna

Opis oferty zawarty na stronie internetowej sporządzany jest na podstawie oględzin nieruchomości oraz informacji uzyskanych od właściciela, może podlegać aktualizacji i nie stanowi oferty określonej w art. 66 i następnych K.C.

Szczegóły oferty

Symbol oferty LND-GS-6011
Powierzchnia 2 662,00 m²
Przeznaczenie działki budowlana, inwestycyjna, usługowa, komercyjna
Stan prawny własność
Zagosp. działki częściowo zagospodarowana
Kształt działki trapez
Ogrodzenie działki siatka w ramach
Gaz w drodze dojazdowej
Woda ciepła - miejska
Dojazd asfalt
Położenie obrzeża miasta
Prąd na działce
Kanalizacja brak

Kalkulator kredytowy

PLN
%
Wysokość raty

Kalkulator kosztów

PLN
PLN
PLN
PLN
PLN
PLN
%
PLN
Podatek od czynności cywilno-prawnych
Taksa notarialna (opłata notarialna)
VAT od taksy notarialnej (opłaty notarialnej)
Wniosek do WKW
VAT od wniosku do WKW
Prowizja agencji nieruchomości
VAT od prowizji agencji nieruchomości
Wypisy aktu notarialnego - około
RAZEM (cena + opłaty)

Podobne oferty

działka na sprzedaż - Lublin, Wrotków

działka na sprzedaż

Lublin, Wrotków
  1 800,00 m2 666,67 zł/m2
działka na sprzedaż - Lublin, Zadębie

działka na sprzedaż

Lublin, Zadębie
  1 534,00 m2 930,90 zł/m2
działka na sprzedaż - Lublin, Zadębie

działka na sprzedaż

Lublin, Zadębie
  4 000,00 m2 355,00 zł/m2
działka na sprzedaż - Lublin, Zadębie

działka na sprzedaż

Lublin, Zadębie
  3 650,00 m2 300,00 zł/m2

Napisz do nas

Proszę wypełnić to pole
Proszę wypełnić to pole
Proszę wypełnić to pole
Proszę wypełnić to pole
Trwa wysyłanie...

Ta strona wykorzystuje pliki cookies w celach statystycznych oraz w celu dostosowania naszych serwisów do indywidualnych potrzeb klientów. Zmiany ustawień dotyczących plików cookie można dokonać w dowolnej chwili modyfikując ustawienia przeglądarki. Korzystanie z tej strony bez zmian ustawień dotyczących cookies oznacza, że będą one zapisane w pamięci urządzenia.

rozumiem