Lublin, Sławin

Działka na sprzedaż

Opis nieruchomości

Na sprzedaż działka o powierzchni 1951m2 - Lublin

Działka oznaczona w MPZP symbolem MN1/U - tereny zabudowy mieszkaniowej jednorodzinnej lub wielorodzinnej (nie więcej niż 6 lokali w mieszkalnych w budynku) z dopuszczeniem zabudowy usługowej nieuciążliwej,

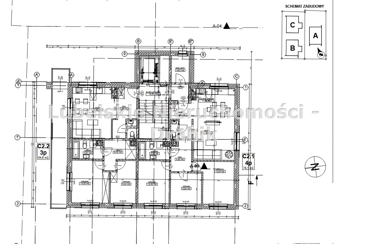
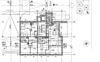
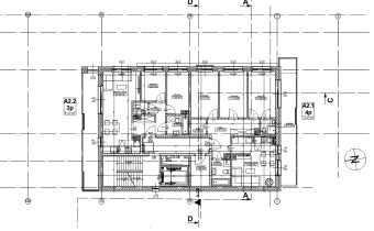
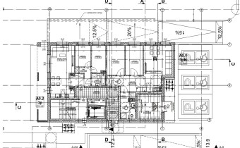
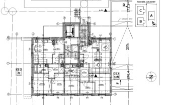
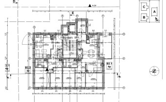
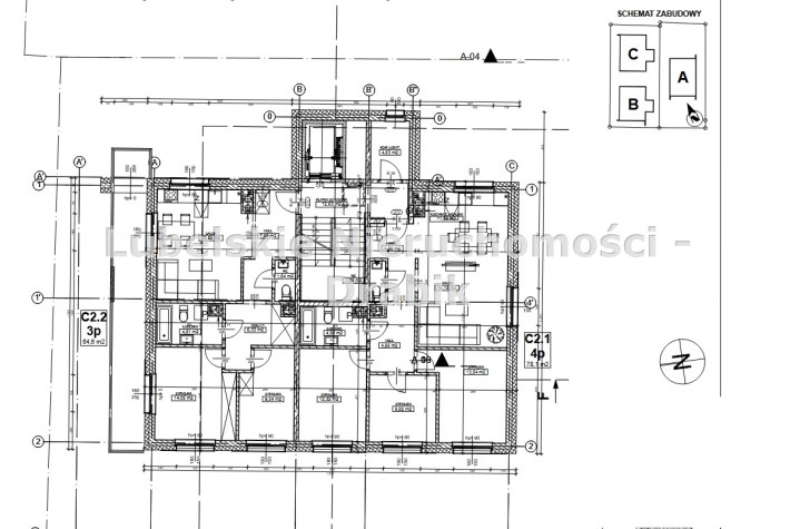
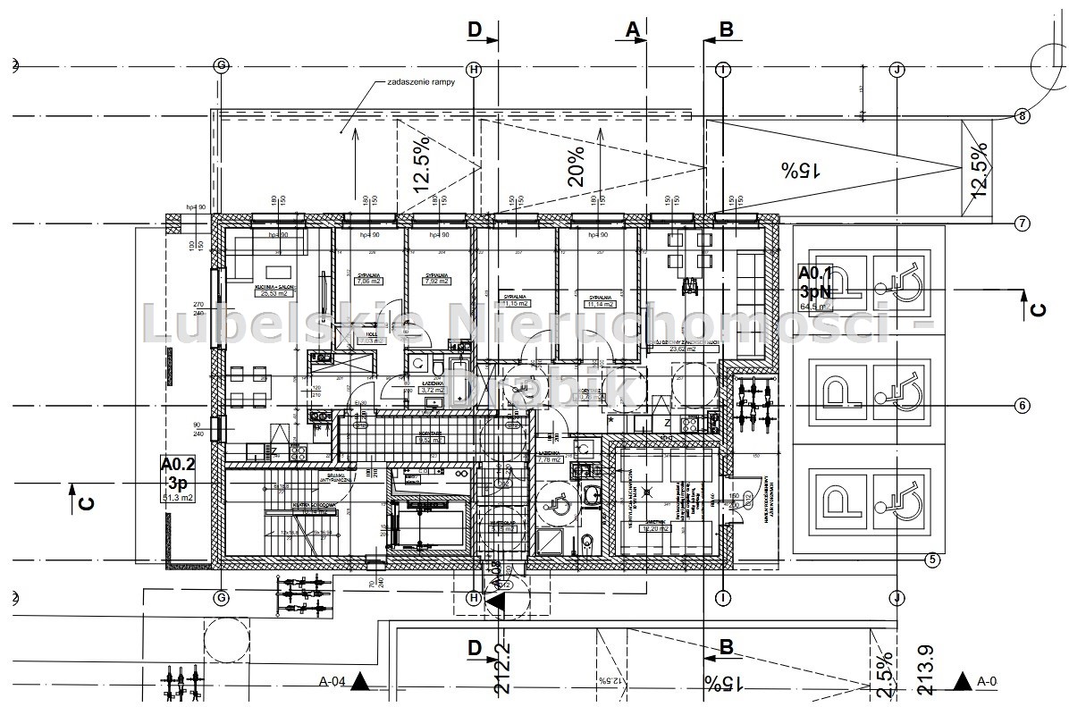
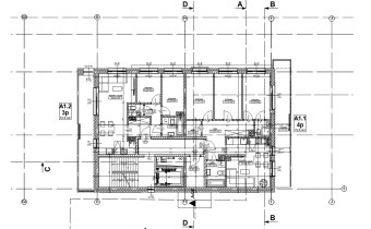
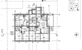
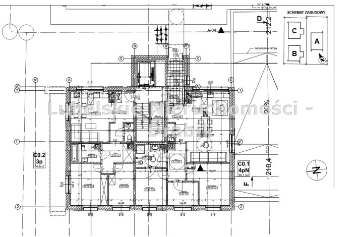
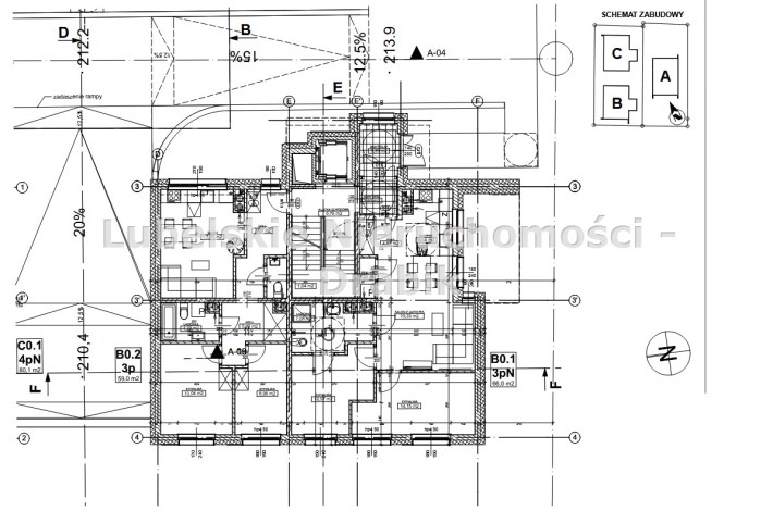
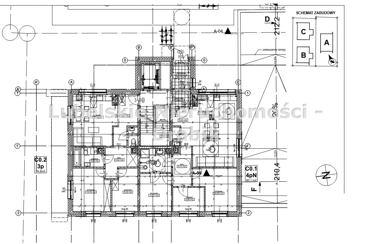
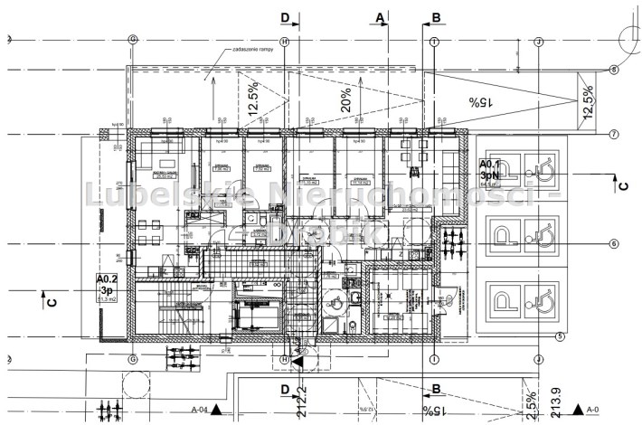
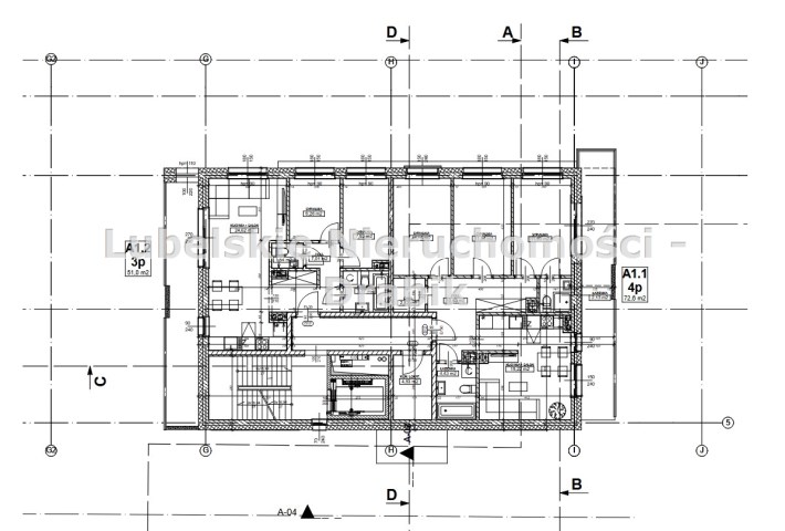
Działka z projektem pod budowę trzech budynków mieszkalnych wielorodzinnych,


Każdy z budynków o trzech kondygnacjach nadziemnych i jednej podziemnej (garaże),

Budynek A o powierzchni użytkowej 797,42m2
Budynek B o powierzchni użytkowej 647,59m2
Budynek C o powierzchni użytkowej 762,65m2

PUM łącznie 1181,1m2,

Dostępne media:
- woda 
- sieć ciepłownicza
- gaz
- prąd
- kanalizacja

Podana cena netto - podlega negocjacji.

Polecamy i zapraszamy na naszą stronę internetową - Lubelskie Nieruchomości Drabik !


 

Nota prawna

Opis oferty zawarty na stronie internetowej sporządzany jest na podstawie oględzin nieruchomości oraz informacji uzyskanych od właściciela, może podlegać aktualizacji i nie stanowi oferty określonej w art. 66 i następnych K.C.

Szczegóły oferty

Symbol oferty LND-GS-6175
Powierzchnia 1 951,00 m²

Kalkulator kredytowy

PLN
%
Wysokość raty

Kalkulator kosztów

PLN
PLN
PLN
PLN
PLN
PLN
%
PLN
Podatek od czynności cywilno-prawnych
Taksa notarialna (opłata notarialna)
VAT od taksy notarialnej (opłaty notarialnej)
Wniosek do WKW
VAT od wniosku do WKW
Prowizja agencji nieruchomości
VAT od prowizji agencji nieruchomości
Wypisy aktu notarialnego - około
RAZEM (cena + opłaty)

Podobne oferty

działka na sprzedaż - Lublin, Zadębie

działka na sprzedaż

Lublin, Zadębie
  7 144,00 m2 355,00 zł/m2
działka na sprzedaż - Lublin, Zadębie

działka na sprzedaż

Lublin, Zadębie
  6 828,00 m2 355,00 zł/m2
działka na sprzedaż - Lublin, Felin

działka na sprzedaż

Lublin, Felin
  4 960,00 m2 401,21 zł/m2
działka na sprzedaż - Lublin, Śródmieście

działka na sprzedaż

Lublin, Śródmieście
  1 019,00 m2 2 747,79 zł/m2

Napisz do nas

Proszę wypełnić to pole
Proszę wypełnić to pole
Proszę wypełnić to pole
Proszę wypełnić to pole
Trwa wysyłanie...

Ta strona wykorzystuje pliki cookies w celach statystycznych oraz w celu dostosowania naszych serwisów do indywidualnych potrzeb klientów. Zmiany ustawień dotyczących plików cookie można dokonać w dowolnej chwili modyfikując ustawienia przeglądarki. Korzystanie z tej strony bez zmian ustawień dotyczących cookies oznacza, że będą one zapisane w pamięci urządzenia.

rozumiem