Lublin

Działka na sprzedaż

Opis nieruchomości

Działka o powierzchni 1210m2 - Lublin, Centrum .
 
Ustalone warunki zabudowy:
- wielość powierzchni zabudowy do 70%
- szerokość elewacji frontowej nie mniej niż 38m, nie więcej niż ser. terenu
- wysokość górnej krawędzi budynku do 3 kondygnacji, nie więcej niż 12m  liczone od poziomu terenu
- możliwość realizacji 4 kondygnacji jako poddasze użytkowe, po dokonaniu
analizy widokowej (pod warunkiem, że łączna wysokość budynku do poziomu kalenicy dachu nie przekroczy 16,00m od poziomu terenu)
- dach dwuspadowy

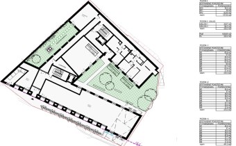
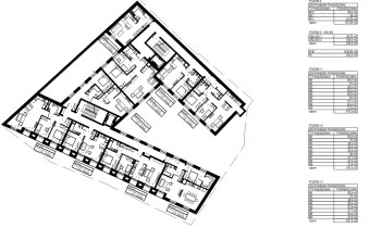
Działka z koncepcją na budowę na budynku mieszkalno-biurowego z funkcją handlowo-usługową na parterze - około 1700m2 PUM.

Budynek o czterech kondygnacjach nadziemnych (parter, pierwsze, drugie, i trzecie piętro) oraz kondygnacja podziemna (garaż),

 

Cena 3 850 000zł netto - podlega negocjacji!

Polecamy i zapraszamy na naszą stronę internetową - Lubelskie Nieruchomości Drabik !

Nota prawna

Opis oferty zawarty na stronie internetowej sporządzany jest na podstawie oględzin nieruchomości oraz informacji uzyskanych od właściciela, może podlegać aktualizacji i nie stanowi oferty określonej w art. 66 i następnych K.C.

Szczegóły oferty

Symbol oferty LND-GS-5623
Powierzchnia 1 210,00 m²
Dojazd asfalt
Położenie centrum

Kalkulator kredytowy

PLN
%
Wysokość raty

Kalkulator kosztów

PLN
PLN
PLN
PLN
PLN
PLN
%
PLN
Podatek od czynności cywilno-prawnych
Taksa notarialna (opłata notarialna)
VAT od taksy notarialnej (opłaty notarialnej)
Wniosek do WKW
VAT od wniosku do WKW
Prowizja agencji nieruchomości
VAT od prowizji agencji nieruchomości
Wypisy aktu notarialnego - około
RAZEM (cena + opłaty)

Podobne oferty

działka na sprzedaż - Lublin

działka na sprzedaż

Lublin
  10 000,00 m2 400,00 zł/m2
działka na sprzedaż - Lublin

działka na sprzedaż

Lublin
  9 764,00 m2 500,00 zł/m2
działka na sprzedaż - Lublin, Śródmieście

działka na sprzedaż

Lublin, Śródmieście
  1 019,00 m2 3 269,87 zł/m2
działka na sprzedaż - Lublin

działka na sprzedaż

Lublin
  920,00 m2 4 347,83 zł/m2

Napisz do nas

Proszę wypełnić to pole
Proszę wypełnić to pole
Proszę wypełnić to pole
Proszę wypełnić to pole
Trwa wysyłanie...

Ta strona wykorzystuje pliki cookies w celach statystycznych oraz w celu dostosowania naszych serwisów do indywidualnych potrzeb klientów. Zmiany ustawień dotyczących plików cookie można dokonać w dowolnej chwili modyfikując ustawienia przeglądarki. Korzystanie z tej strony bez zmian ustawień dotyczących cookies oznacza, że będą one zapisane w pamięci urządzenia.

rozumiem