Lublin

Hala na sprzedaż

Opis nieruchomości

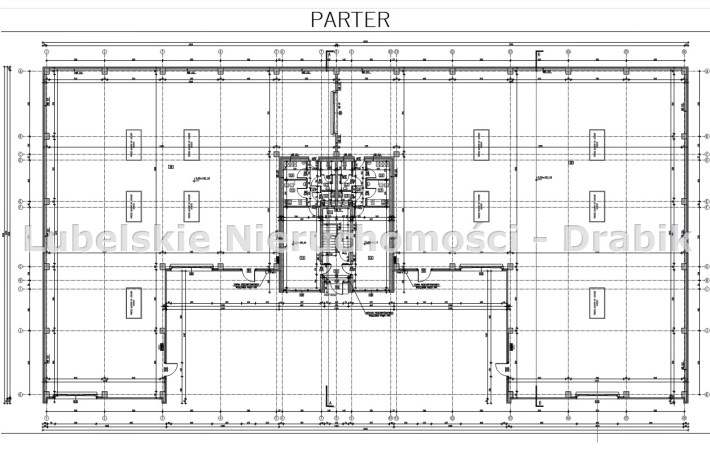
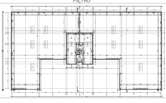
Na sprzedaż budynek magazynowy z częścią biurową o łącznej powierzchni około 899,78m2,

Obiekt składa się z dwóch hal z częściami biurowymi połączone wspólna klatką schodową,

Nieruchomości można wykupić w całości lub pojedynczo (hala + biuro),

Hala nr 1 o pow. 622,46m2 + biuro 98,71m2

Hala nr 2 o pow. 801,39m2 + biuro 98,39m2


Wspólna klatka schodowa o pow. 17,62m2

Biura w stanie deweloperskim:
- instalacja elektryczna 
- instalacja fotowoltaiczna
- instalacja wod-kan
- grzanie/chłodzenie - system vrf 
- tynki ,posadzki
- stolarka okienna - aluminiowa


Wykończenia hal:
- instalacja elektryczna + oprawy 
- ogrzewanie - brak - przygotowana instalacja elektryczna pod system vrf
- posadzka przemysłowa 

Teren utwardzony kostką brukową

Standardy pożarowe:
- obciążenie ogniowe 4000 mj/m2
- system ssp - na całym obiekcie

Dostępne media:
- prąd (2x33kw)
- woda
- kanalizacja

Działka o powierzchni 3525m2,

Dojazd drogą asfaltową,

Proponowana cena netto,

Polecamy i zapraszamy na naszą stronę internetową - Lubelskie Nieruchomości Drabik !

 

Nota prawna

Opis oferty zawarty na stronie internetowej sporządzany jest na podstawie oględzin nieruchomości oraz informacji uzyskanych od właściciela, może podlegać aktualizacji i nie stanowi oferty określonej w art. 66 i następnych K.C.

Szczegóły oferty

Symbol oferty LND-HS-5920
Powierzchnia 899,78 m²

Kalkulator kredytowy

PLN
%
Wysokość raty

Kalkulator kosztów

PLN
PLN
PLN
PLN
PLN
PLN
%
PLN
Podatek od czynności cywilno-prawnych
Taksa notarialna (opłata notarialna)
VAT od taksy notarialnej (opłaty notarialnej)
Wniosek do WKW
VAT od wniosku do WKW
Prowizja agencji nieruchomości
VAT od prowizji agencji nieruchomości
Wypisy aktu notarialnego - około
RAZEM (cena + opłaty)

Podobne oferty

hala na sprzedaż - Lublin

hala na sprzedaż

Lublin
  500,00 m2 8 000,00 zł/m2
hala na sprzedaż - Lublin

hala na sprzedaż

Lublin
  856,00 m2 5 373,83 zł/m2
hala na sprzedaż - Lublin

hala na sprzedaż

Lublin
  1 600,00 m2 2 437,50 zł/m2
hala na sprzedaż - Lublin

hala na sprzedaż

Lublin
  2 067,00 m2 3 072,09 zł/m2

Napisz do nas

Proszę wypełnić to pole
Proszę wypełnić to pole
Proszę wypełnić to pole
Proszę wypełnić to pole
Trwa wysyłanie...

Ta strona wykorzystuje pliki cookies w celach statystycznych oraz w celu dostosowania naszych serwisów do indywidualnych potrzeb klientów. Zmiany ustawień dotyczących plików cookie można dokonać w dowolnej chwili modyfikując ustawienia przeglądarki. Korzystanie z tej strony bez zmian ustawień dotyczących cookies oznacza, że będą one zapisane w pamięci urządzenia.

rozumiem