Lublin, Śródmieście, Centrum

Lokal na sprzedaż

Opis nieruchomości

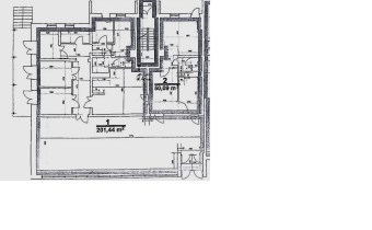
Na sprzedaż dwa  lokale handlowo-usługowe o  powierzchni łącznej 251m2 z - Lublin, Czuby.

.tj.
- lokal nr. 1 o pow 201m2
- lokal nr. 2 o powierzchni 50m2

Obecnie lokale oddzielone ścianą działową- lokale można połączyć do metrażu 251m2 


Lokal dobrze widoczny z głównej ulicy, blisko przystanek MPK.


Trzy wejścia z ulicy, 

Duże witryny wystawowe,

Duża sala sprzedaży około 140m2,

Ogrzewanie z sieci miejskiej, odpływy wody w podłodze, woda rozprowadzona po większości lokalu.

Do lokalu przynależy mini rampa dla dostaw oraz parking dla dostaw.

Czynsz administracyjny około 3000zł m-c (w tym zaliczki ogrzewania z sieci miejskiej i wody, fundusz remontowy,administracja itd.)

Istnieje możliwość zakupu pojedynczych lokali jak i całości. 

Stan prawny lokali - własność.


Podana cena BRUTTO (bez VAT) - podlega negocjacji.

Polecamy i zapraszamy na naszą stronę internetową - Lubelskie Nieruchomości Drabik !

Nota prawna

Opis oferty zawarty na stronie internetowej sporządzany jest na podstawie oględzin nieruchomości oraz informacji uzyskanych od właściciela, może podlegać aktualizacji i nie stanowi oferty określonej w art. 66 i następnych K.C.

Szczegóły oferty

Symbol oferty LND-LS-6160
Powierzchnia 251,00 m²
Piętro parter
Opłaty w czynszu administracja, Części wspólne, ogrzewanie, woda/ryczałt na wodę, zaliczka na fundusz remontowy
Okna PCV
Rodzaj lokalu jednopoziomowy
Przeznaczenie lokalu biurowy, gastronomia, handlowo-usługowy, handlowy, inny, usługowy
Dojazd asfalt
Ogrzewanie C.O. miejskie

Kalkulator kredytowy

PLN
%
Wysokość raty

Kalkulator kosztów

PLN
PLN
PLN
PLN
PLN
PLN
%
PLN
Podatek od czynności cywilno-prawnych
Taksa notarialna (opłata notarialna)
VAT od taksy notarialnej (opłaty notarialnej)
Wniosek do WKW
VAT od wniosku do WKW
Prowizja agencji nieruchomości
VAT od prowizji agencji nieruchomości
Wypisy aktu notarialnego - około
RAZEM (cena + opłaty)

Podobne oferty

lokal na sprzedaż - Lublin, Śródmieście, Centrum

lokal na sprzedaż

Lublin, Śródmieście, Centrum
  125,00 m2 11 000,00 zł/m2
lokal na sprzedaż - Lublin, Śródmieście, Centrum

lokal na sprzedaż

Lublin, Śródmieście, Centrum
  142,68 m2 16 000,00 zł/m2
lokal na sprzedaż - Lublin, Śródmieście, Centrum

lokal na sprzedaż

Lublin, Śródmieście, Centrum
  135,82 m2 16 000,00 zł/m2
lokal na sprzedaż - Lublin, Śródmieście, Centrum

lokal na sprzedaż

Lublin, Śródmieście, Centrum
  96,01 m2 16 000,00 zł/m2

Napisz do nas

Proszę wypełnić to pole
Proszę wypełnić to pole
Proszę wypełnić to pole
Proszę wypełnić to pole
Trwa wysyłanie...

Ta strona wykorzystuje pliki cookies w celach statystycznych oraz w celu dostosowania naszych serwisów do indywidualnych potrzeb klientów. Zmiany ustawień dotyczących plików cookie można dokonać w dowolnej chwili modyfikując ustawienia przeglądarki. Korzystanie z tej strony bez zmian ustawień dotyczących cookies oznacza, że będą one zapisane w pamięci urządzenia.

rozumiem