Lublin, Ponikwoda

Lokal na wynajem

Opis nieruchomości

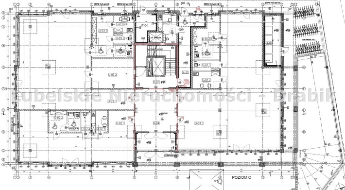
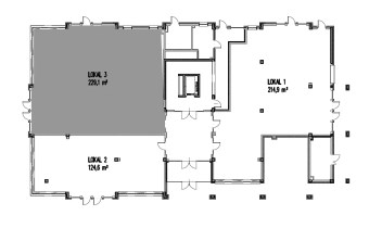
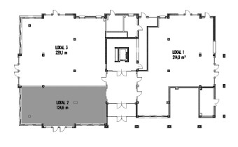
Do wynajęcia lokale usługowe - Lublin, Ponikwoda

Lokale na trzech kondygnacjach, które można dowolnie dzielić i łączyć !

Stan deweloperski do aranżacji,

Istnieje możliwość wykończenia lokalu przez Wynajmującego - indywidualne ustalenia,


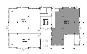
Parter o łącznej powierzchni około 568,6m2
(obecnie dostępne lokale: 124,6m2 ; 214,9m2 ; 229,1m2)
Nośność stropu – 5Tm2.
Lokale wyposażone w instalację do zamontowania klimatyzacji.


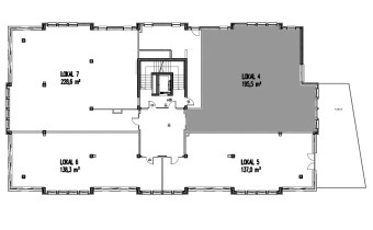
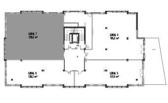
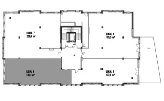
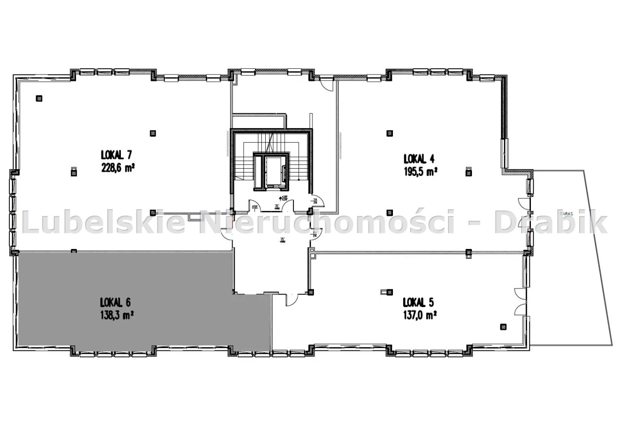
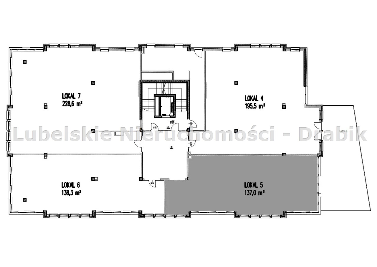
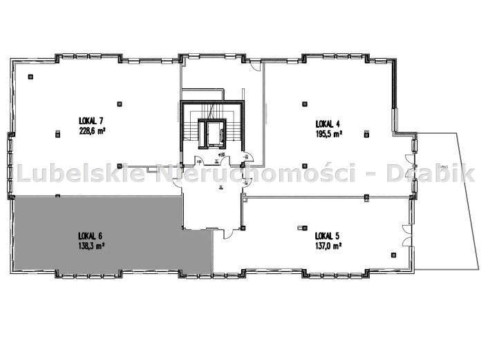
Piętro 1 o łącznej powierzchni około 693,1m2 
(obecnie dostępne lokale: 130,7m2; 138,3m2; 195,5m2; 228,6m2

Piętro 2 o łącznej powierzchni około 693,1m2
(obecnie lokale mieszkalne, możliwość przystosowania pod usługi),

Ogrzewanie gazowe,

Parking nadziemny na około 30 samochodów oraz podziemny na około 25 samochodów,

Proponowane czynsze najmu:
parter 55zł netto/m2 + opłata eksploatacyjna 10zł netto/m2
1 piętro 50zł netto/m2 + opłata eksploatacyjna 10zł netto/m2

Polecamy i zapraszamy na naszą stronę intranetową - Lubelskie Nieruchomości Drabik !

Nota prawna

Opis oferty zawarty na stronie internetowej sporządzany jest na podstawie oględzin nieruchomości oraz informacji uzyskanych od właściciela, może podlegać aktualizacji i nie stanowi oferty określonej w art. 66 i następnych K.C.

Szczegóły oferty

Symbol oferty LND-LW-6179
Powierzchnia 1 954,80 m²
Typ kaucji do uzgodnienia

Podobne oferty

lokal na wynajem - Lublin, LSM, os. Zana

lokal na wynajem

Lublin, LSM, os. Zana
  0,00 m2 0,00 zł/m2
lokal na wynajem - Lublin, Śródmieście, Centrum

lokal na wynajem

Lublin, Śródmieście, Centrum
  923,50 m2 0,00 zł/m2

Napisz do nas

Proszę wypełnić to pole
Proszę wypełnić to pole
Proszę wypełnić to pole
Proszę wypełnić to pole
Trwa wysyłanie...

Ta strona wykorzystuje pliki cookies w celach statystycznych oraz w celu dostosowania naszych serwisów do indywidualnych potrzeb klientów. Zmiany ustawień dotyczących plików cookie można dokonać w dowolnej chwili modyfikując ustawienia przeglądarki. Korzystanie z tej strony bez zmian ustawień dotyczących cookies oznacza, że będą one zapisane w pamięci urządzenia.

rozumiem