Lublin, Śródmieście, Centrum

Lokal na wynajem

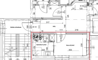
Opis nieruchomości

Do wynajęcia powierzchnia biurowo-usługowe - Lublin, Centrum - w bezpośrednim pobliżu budynki użyteczności publicznej.

Lokal w stanie wykończonym, gotowy do wejścia !

Lokal o powierzchni całkowitej około 12m2 (w tym wliczone własne WC),


2 piętro,

Winda w budynku,

Wysokość pomieszczeń: 2,8m.

Ogrzewanie własne - gazowe.

Możliwość rozprowadzenia wody w pomieszczeniach,

Budynek doskonały pod gabinety lekarskie, kosmetyczne, biura,

Nieruchomość posiada dodatkowe przyłącze elektryczne.

Parking na terenie posesji (około 10 samochodów)


1200zł netto z mediami w cenie !

Istnieje również możliwość wynajęcia samodzielnego lokalu ok. 70m2 z wejściem z ulicy do remontu,

Podana cena podlega negocjacji,
Dostępne także  20m2 -IIIp oraz 20m2 parter.

Polecamy i zapraszamy na naszą stronę internetową - Lubelskie Nieruchomości Drabik !

Nota prawna

Opis oferty zawarty na stronie internetowej sporządzany jest na podstawie oględzin nieruchomości oraz informacji uzyskanych od właściciela, może podlegać aktualizacji i nie stanowi oferty określonej w art. 66 i następnych K.C.

Szczegóły oferty

Symbol oferty LND-LW-5532
Powierzchnia 12,00 m²
Rodzaj budynku biurowo-usługowy
Opłaty w czynszu wywóz śmieci, woda, Winda, prąd, ogrzewanie, Części wspólne
Opłaty wg liczników woda, prąd, gaz, CO
Stan prawny Własność
Typ kaucji do uzgodnienia
Okna PCV
Rodzaj lokalu jednopoziomowy
Gaz tak - miejski
Woda jest
Dojazd asfalt
Ogrzewanie własne gazowe - kocioł 2-funkcyjny
Alarm tak
Winda tak
Liczba wind 1
Możliwość parkowania tak
Własny parking tak
Wejście od ulicy

Podobne oferty

lokal na wynajem - Lublin, Zadębie

lokal na wynajem

Lublin, Zadębie
  28,00 m2 50,00 zł/m2
lokal na wynajem - Lublin, Wrotków

lokal na wynajem

Lublin, Wrotków
  10,00 m2 90,00 zł/m2
lokal na wynajem - Lublin, Bronowice

lokal na wynajem

Lublin, Bronowice
  32,00 m2 27,50 zł/m2
lokal na wynajem - Lublin, Bronowice

lokal na wynajem

Lublin, Bronowice
  36,00 m2 40,00 zł/m2

Napisz do nas

Proszę wypełnić to pole
Proszę wypełnić to pole
Proszę wypełnić to pole
Proszę wypełnić to pole
Trwa wysyłanie...

Ta strona wykorzystuje pliki cookies w celach statystycznych oraz w celu dostosowania naszych serwisów do indywidualnych potrzeb klientów. Zmiany ustawień dotyczących plików cookie można dokonać w dowolnej chwili modyfikując ustawienia przeglądarki. Korzystanie z tej strony bez zmian ustawień dotyczących cookies oznacza, że będą one zapisane w pamięci urządzenia.

rozumiem